NOSTRA ESCLUSIVA – Malcontenta, posizione centratamento
€ 205.000
Venezia, zona Marghera - Catene
Dettagli
Contratto Vendita
Rif M522
Prezzo € 205.000
Provincia Venezia
Comune Venezia
Zona Marghera - Catene
Indirizzo Via Malcontenta">
Vani 10
Camere 3
Bagni 2
Classe energetica
E (DL 90/2013)
EPgl,nren 175 kwh/m2 anno
Riscaldamento autonomo
Condizioni abitabile
Spese condominiali € 50
Anno di costruzione 1962
Cucina abitabile
Consistenze
| Descrizione | Superficie | Sup. comm. |
|---|---|---|
| Principali | ||
| Immobile - 2° piano | 140 Mq | 140 Mqc |
| Mansarda - 3° piano | 60 Mq | 60 Mqc |
| Totale | 200 Mqc | |
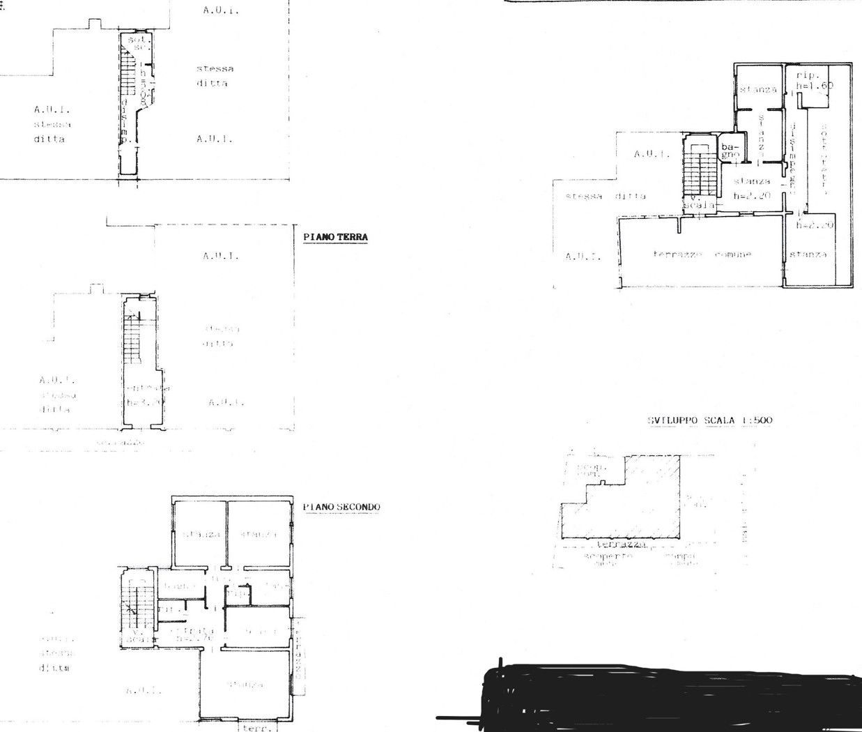
NOSTRA ESCLUSIVA Malcontenta – In posizione centrale, a due passi dalla piazza, dalla chiesa e dal fiume Brenta, con fermata dell'autobus per Venezia e Padova sotto casa, proponiamo ampio appartamento al secondo e ultimo piano con mansarda sfruttabile, per una superficie complessiva di circa 210 mq.
L'immobile, molto luminoso e con gradevole vista sul Brenta, si compone di: ingresso, ampio soggiorno con terrazza, cucina abitabile, tre camere da letto (di cui due matrimoniali), ripostiglio/lavanderia, bagno, terrazza. Al piano superiore troviamo una spaziosa mansarda con tre ulteriori stanze, bagno e comode zone sottotetto/ripostiglio.
Completano la proprietà un garage/magazzino e un curato giardino comune.
L'appartamento si presenta in buone condizioni generali ed è dotato di: riscaldamento autonomo, aria condizionata, porta blindata, infissi nuovi con triplo vetro.
Le parti comuni risultano anch'esse ben mantenute.
L'immobile, molto luminoso e con gradevole vista sul Brenta, si compone di: ingresso, ampio soggiorno con terrazza, cucina abitabile, tre camere da letto (di cui due matrimoniali), ripostiglio/lavanderia, bagno, terrazza. Al piano superiore troviamo una spaziosa mansarda con tre ulteriori stanze, bagno e comode zone sottotetto/ripostiglio.
Completano la proprietà un garage/magazzino e un curato giardino comune.
L'appartamento si presenta in buone condizioni generali ed è dotato di: riscaldamento autonomo, aria condizionata, porta blindata, infissi nuovi con triplo vetro.
Le parti comuni risultano anch'esse ben mantenute.
Richiedi maggiori informazioni
Mappa
Zoom della mappa
Apri con:
Apple Maps
Google Maps
Waze
Contattaci
Cerang Servizi Immobiliari
Galleria Teatro Vecchio, 8 30173 VENEZIA (VE)
Galleria Teatro Vecchio, 8 30173 VENEZIA (VE)
P.IVA: 02579040276
0415220932
info@cerang.it





